- By Dan Veaner
- News
Print
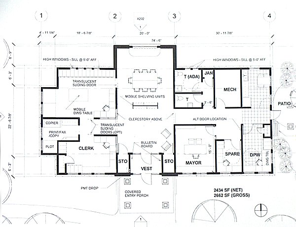
Village of Lansing Trustees decided Monday that a new Village Hall will be located in front of the current facility on Triphammer Road. The $400,000 2,662 square foot office building is being planned for construction beginning next Spring. But issues with the site will add another $50,000 to the price tag. Choosing a site will clear the way for final planning phase, and Mayor Donald Hartill says the plans should be completed before the end of this year. "We have a staff that works very hard for us, Hartill says. "They deserve a comfortable place to work. I came in Thursday and the pumps were running because of moisture concerns. When the pumps are running (Village Clerk Jodi Dake) has a vibra massage! I've measured vibration levels here that are just unacceptable."
Those pumps belong to the Bolton Point Municipal Water System, which supplies water to the Towns of Dryden, Ithaca, Lansing, and the Villages of Cayuga Heights and Lansing. Bolton Point originally owned the current Village Office building, and still has a substantial pumping station in the back of the building. After new pumps were installed a few years ago the noise and vibrations got worse. Work was done to the building to reduce the impact, and Bolton Point agreed to run the pumps at for the most part at night, but that has proven to be a rickety solution.
"We can get by with just running the pumps at night," Hartill says. "It's an inconvenience for Bolton Point, and it's an inconvenience for us to have to deal with it. It's time to fix that."
Architect's rendering of a new Village of Lansing Hall to be built on Triphammer Road in front of the current Village office buildingLast year Hartill said the new building is needed in part to have one building where all Village employees can work, in part to handle the pump vibration problem that was wreaking havoc with employees and computers, and also because the Planning Office had run out of strage space.
Trustees have considered three locations on the Village campus before deciding to place the building up front by Triphammer Road Monday night. Hartill says that each location presents particular challenges that will add another $50,000 to the cost. A location directly behind the current building would present problems for Bolton Point's ability to access its equipment. A second choice on a rise where an old water tank was removed in August provided parking and access issues that would require handicapped ramps and level areas be incorporated into the design.
Those locations were considered because of issues with the location in front of the current building. Village zoning law requires a 25 foot buffer between the street and new buildings, but Village officials are trying to encourage developers to offset their buildings by 50 feet to provide more of a village-like atmosphere. Hartill says the location easily meets the 25 foot requirement, but would put the Village at odds with its own 50 foot recommendation.
The other challenge is that a utility pole that supplies power to the pumping station will have to be moved at a cost of $50,000. But Hartill hopes to be able to negotiate that cost down with the power company.
"I am surprised that it is $50,000 to plant one new pole," he said Monday. "Actually NYSEG owes us, because we paid at least $100,000 extra on the Triphammer Road construction project -- probably more like half a million -- because they didn't move their poles in time. We had to lower the drains because couldn't complete the final paving in one season."
Click for larger image Village officials say the project will cost Villagers no additional taxes. Hartill says that bonding will not be necessary because it is his policy to save money for projects before undertaking them. He says the money for this project is in the bank.
"We're not talking about additional taxes," he says. "We don't bond. Save your money before you do it. I grew up on a hard scrambled dairy farm. We did not have indoor facilities until I was 12 years old. That set the scale of my outlook on finances."
Hartill the building should be ready for use around the end of 2012.
v7i37


