- By Dan Veaner
- News
Print
Most of the 40 people who attended a joint Village of Lansing Planning Board and Board of Trustees meeting Tuesday were neighbors or their representatives who oppose the proposed Lansing Reserve project. Village officials were accused of pandering to developer interests, of having hidden agendas, contemplating exercise of eminent domain to provide access to the project, and making decisions based on flawed data. Officials insisted they are simply following the law in considering the project, are in an information gathering stage, and are far from any final decision on whether or not the project will go forward in its current form."This is really an information gathering session," said Village Mayor Donald Hartill. "It is the earliest part of the process. We still have more information to receive as our own traffic consultants evaluate (the developer's) traffic study. There certainly are issues with respect to access."
Nevertheless neighbors challenged everything from the actual size of the property to the cost per unit, impact on local roads, schools, services, its impact on neighboring home values, and insufficient emergency vehicle access -- and most of all the quality of life in the neighborhood. Residents also brought up a restrictive covenant that they say prevents residents of Dart Drive to build cluster developments. Resident Bill Shaw noted that over 70 residents have signed letters challenging the project.
Villagers poured into the Village of Lansing meeting room Tuesday. It was filled to capacity Tuesday for a joint Planning Board and Board of Trustees meeting to gather information about the proposed Lansing Reserve development. By the time the meeting started every seat was taken, and some people listened to the proceedings through the windows from the parking lot.Several representatives of Northwoods Apartments argued vehemently against the project, including some renters who said they would move out if Lansing Meadows is built. Resident Yasmine Miller, one of the leaders of neighbors challenging the project, including rallying neighbors on their 'Stop Lansing Reserve' Web site, presented figures challenging data used to support the project so far, and chastised Hartill for writing a letter he wrote last December that NRP Group could use in support of obtaining tax considerations to help fund the project.
"The reality is that none of this would have started had you not supported them in the first place," she said. "Their application to the state asked you to submit you to submit letters in support of their development. That is why we're here. We're not opposing development per se. What we're saying is you didn't ask our opinion in the first place. Now we're telling you. We didn't want this from the beginning. You didn't ask us whether we support it. We're wondering why you supported it in the first place."
"Why are we doing this when there is so much opposition to it?" Tomei said. "That's because legally we have to start a process. If we are approached with a proposal we can't just say 'yes' or 'no' without going through the process of looking into all the details of it from a very unbiassed standpoint. There is nobody up here that is dying to see this happening and there is nobody up here who has no need for it at all. It's simply two boards that have to go though a process. We will continue to do the homework. We're doing it because we're required to do it by our laws. And we would do it for anybody that comes in with a proposal."
Axiom Communications President Ron Simoncini, who works with the Solomon Organization, had the harshest words for Village officials. He said that the Village's desire to acquire Northwoods Drive as a Village Road must involve self-interest in making Village property in the area more viable as well as providing a major access point for the Lansing Reserve project. He accused the Village government of setting up the approval process to circumvent compliance with the State environmental review process.
"The objective of the body should be the greater good of the town," Simoncini said. "That's what you were elected to do. You have to do this in a way that is an actual assessment and not a flim-flam to get something approved."
But Hartill, Planning Board Chairman Mario Tomei, and Village Attorney David Dubow defended the process. Dubow noted that Chris Dirr, representing NRP Development and Better Housing Executive Director John Spence, whose organization will hold a 51% interest in the project and manage it when completed, have been at most meetings where they could answer questions if anyone had cared to ask.
Dubow said that consideration of the project is in its very early information-gathering stages, typically before the question of a formal environmental review would be considered. He added that representatives of the government and the developer have been available to answer questions by email or any other means.
"We welcome that. That's what this process is about," Dubow said. "It's about a collaborative and cooperative method of trying to gather information, to embrace the community's participation in that, because it is a zoning mater, and then to make as good a decision as the boards can make."

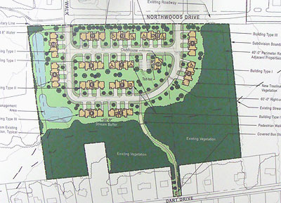
The property proposed for the project is nestled between Northwoods Drive and Dart Drive. It is one of two large privately owned properties that could be developed there. The current plan is to develop 65 units, some of them priced as affordable housing, on half of the property, leaving the southern and eastern portions 'forever green' with the exception of an access road that would cut through to Dart Drive. The main access for the property is planned to let out across from Coventry Walk, a dead end street. Currently the only way out is via Northwoods Drive, the driveway owned by Northwoods Apartments.
Simoncini says that if Northwoods Drive were to become a Village road that traffic would be significantly increased not only by Lansing Reserve residents, but when others use the road as a pass-through to get to the airport.
For years Hartill has attempted to negotiate with the owners of the apartment complex to obtain their drive to expand into a Village road, which he says would be made safer. That looked possible before the apartments were sold to the Solomon Organization about three years ago. But representative after representative of the owners made it clear Tuesday that they have absolutely no interest in giving up their road.
"It has become very clear tonight," Hartill said. "It was likely the outcome that Northwoods Road would not be a viable alternative. So now we know the answer to that."
The Village's Planned Development Area (PDA) law was passed last year to allow some flexibility in allowing projects where zoning does not currently allow some special use. Current zoning for the propert would allow 80 units with no special permitting or zoning changes applied. By applying that process to this project Village officials hope to reduce the number of units from over 80 to 65, which would mitigate the potential traffic impact to the existing neighborhood. It would also permanently preserve a natural buffer that includes about half the approximately 23 acre property.
"The interest of the Village when we go through a PDA process is to preserve that forever," Hartill said. "They could have gone to a cluster development provided that only some of the units were owner-occupied. That would not have insured the set-aside of the set aside of the forever wild piece, you would have potentially ended up with many more units. So one has to look rather carefully at why we're going through this process. That is the main reason we are doing this."
He said that plus providing more affordable housing fits both the Village's comprehensive plan, but also Tompkins County's. Tompkins County Commissioner of Planning and Public Works Ed Marx added his support for the project.
"There is a strong need for affordable or workforce housing, and we strongly support attempts to provide that housing in existing villages and other centers of development that may be designated by communities," he said. "15,000 or more people commute daily into Tompkins County for their employment, which is a substantial portion of our workforce. Surveys show that 50% or more say they don't live in Tompkins County because of the cost and availability of housing."
Marx added that locating additional housing near existing infrastructure like sewer and water minimizes the need for taxpayer money to expand those services into areas that would use them less, and uses those resources more efficiently. He said an analysis the County did in 2005 that concluded that 4,000 new housing units would be needed over ten years is still valid, although the economic downturn may have extended the timeframe somewhat.
"We are committed to this project," Dirr said. "If the community says that affordable housing is not appropriate for the site then we will look to alternatives. If the community says that apartments are not appropriate, we will look to alternatives. I haven't heard what is appropriate. I haven't heard what the community would like. I'm talking about this site. I've distributed my phone number, my email address. Nobody has contacted me or Better Housing of Tompkins county ever to say what they would like to see at the site."
He also noted that nobody had offered to buy the site to preserve it in its entirety for the existing neighborhood. That was in response to comments from a handful of people, including Hartill, who said it would be unfair to summarily dismiss a proposal from any Village landowner.
"I personally faced that a number of years ago," Hartill said. "There was a very nice property on Cayuga Heights Road that was about to be developed. My wife and I spent a lot of money to preserve that, and it will be preserved as long as I have anything to do with that. But that's the only way that you can guarantee that a place that you have grown accustomed to can stay that way. That's if you own it. Otherwise it's up to the process to determine whether a project obeys the zoning ordinances."
Clockwise, Planning Board member Maria Stycos, Trustee Pat O'Rourke, Codes Officer Marty Moseley, Village Clerk Jodi Dake, Mayor Donalt Hartill, Planning Board Chair Mario Tomei, Village Attorney David Dubow, Village engineer Brent Cross, Planning Board member Phil Dankert, Trustee Julie Baker, Planning Board member Richard Durst, Trustee John O'Neil, Planning Board alternate Jonathan Kanter (Trustee Lynn Leopold not shown)"A property owner has the right to do on his property what our land use regulations may permit now or may permit at some point in the future," Dubow said. "We have no ability to deny any landowner the opportunity to do on their land what our laws permit them to do. Our Planned Development Area legislation provides a procedure for the Village to make a determination in response to a proposal to rezone a piece of property in a creative and collaborative and cooperative way, targeting both the best interests of the Village and the impact that particular project may have on the Village and the property involved."
"For somebody to criticize the Village for not pulling the plug on something before they have had an opportunity to review and gather information, understand positions taken by all of the parties, I believe -- and I believe that both boards believe -- that would be a worse thing than having to go through the process, which is what we're doing," Dubow added.
He said that the two boards have been and continue to gather information about environmental impact, traffic information, insight into funding alternatives that will insure the project, if approved, will be completed as planned. He noted that the process can be halted or altered at any time the Board feels the Village's best interests are not being met by the project.
"This project is a very complex one. It has a number of problems, access being one of them," Hartill said. The fact that there is a very strong resistance against that project. It provides an interesting opportunity for us to do our jobs in a rational and reasonable way."
v7i29


